طراحی بیمارستان پارس رشت : از نیمه دوم قرن بیستم تا امروز ، طراحی معماری ساختمان بیمارستان با تغییرات بزرگی روبرو شده است. این تغییرات ناشی از نقشی حیاتی است که این نوع ساختمانها در بافت شهر و جامعه به عنوان ویژگیهای شهری ایفا خواهند کرد.
توضیحات پروژه
نظرسنجی های گسترده در زمینه گونه شناسی مراکز درمانی فعلی در ایران منجر به چنین نتایج ناامیدکننده ای می شود ، سالهاست که این ساختمانها بر اساس تکرار برخی بلوک های از پیش طراحی شده ساخته شده اند که در اطراف ساختمان با پوسته ای پوشانده شده و به عنوان ساختمان بیمارستان نهایی شده است.
بنابراین شبکه پیچیده ای از مسیر ایجاد می شود که عمدتاً راهروهای بسیار باریک و تاریکی هستند که احساس ترس و استرس را در کاربران بیشتر و بیشتر ایجاد می کند ، بنابراین زمان آن است که ارزشهایی را که بر بیمارستان ها و مراکز درمانی تأثیر می گذارد ، دوباره تعریف و ارزیابی مجدد کنیم. خدماتی که کاربران را در جریان تجربیات خود در این نوع مراکز به آرامش می رساند.
مشخصات پروژه
- معماران: معماری موج نو
- حوزه: 30000 متر مربع
- سال: 2016
- عکسها: پرهام تقیوف
- معماران برجسته: لیدا الماسیان ، شاهین حیدری
- پیمانکار: شرکت لاتوم
- تیم طراحی: آذین باباخانلو ، مریم ایوبی ، آیناز رستگار ، سارا میلانی نیا ، سهیلا زاهدی ، زهرا همدانی ، سارا فراهانی ، مریم امان پور ، شیرین ضیایی ، شیدا قطبی ، مریم معرفتوست ، ندا روغنی ، ندا دهقانی ، محمد رشورا تینا ، محمد کشاورز یاوریان ، سحر عربگری
- کارفرما: طب زیست بنیان
- شهر: رشت
- کشور: ایران
طراحی بیمارستان
طراحی بیمارستانها تنها به دلیل مقیاس وسیع آن در طراحی ، چندان مشکل ساز نمی شود ، اما نکات مهم مطرح می شود ، زیرا باید به هم پیوستگی چنین عملکردهای بسیار پیچیده ای توجه داشت که حوزه هایی از علوم پزشکی گرفته تا مهندسی ، روانشناسی و غیره را در بر می گیرد. این مناطق ذکر شده همیشه با تغییرات حیاتی در زمان ، حتی روز به روز مواجه می شوند. بهترین راه حل ها به عنوان اجتناب ناپذیر این نوع مکانها هستند که احساسات مردم را به طور مستقیم تحت تأثیر قرار می دهند. ارزشهایی باید در نظر گرفته شوند که احساسات راحتی را متقاعد کرده و استرس و درد را در بیماران کاهش دهد ، مانند توزیع کامل مناطق ، شکل حجم ، همسویی با بافت سایت ، نمای به بیرون ، فضاهای سبز ، مبلمان ، مصالح ، رنگ و نور.
بیمارستان پارس رشت متعلق به بخش خصوصی به عنوان مالک است ، البته این واحدهای خصوصی به دنبال سود خود در طراحی های خلاقانه و پیشگام هستند که به انگیزه بسیار موثری برای ارائه بهترین خدمات به مشتریان و جذب کاربران بیشتر تبدیل شده است. بنابراین برای این واحدها ، کاربران هم مهمان گرانبهای بیمارستان و هم متقاضی سلامت هستند که هزینه آن را پرداخت می کنند. این ساختمان با کیفیت بهتر ، جذب مشتری بیشتر ، ارائه خدمات بهتر و کسب سود بیشتر ، این هدف آن است.
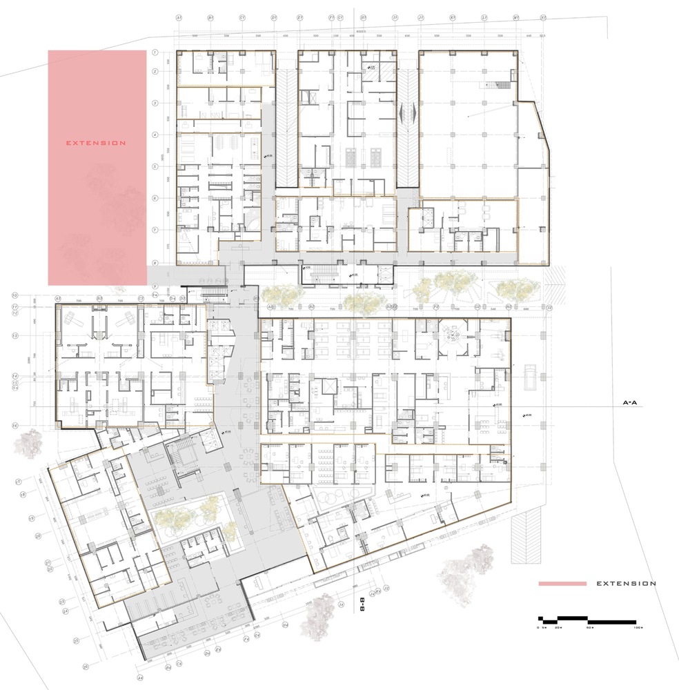
بیمارستان پارس رشت در زمینی به مساحت 30000 متر مربع و تقریباً 160 تخت ساخته شده است و در مجاورت یکی از شلوغ ترین جاده های شهر رشت با احتمال زیاد افزایش آلودگی صوتی در آینده واقع شده است. از آنجا که محبت کمتری از آلودگی صوتی دارد ، گسترش ساختمان در محل به گونه ای است که بیشترین فاصله را از جاده دارد. مطابق با بافت شهر رشت ، طراح سعی می کند حجم های نامناسب را در نظر بگیرد ، بنابراین بدین ترتیب تداوم گشت و گذار حفظ می شود.
مفهوم طراحی در طبقه همکف ناشی از داشتن فضای وسیع با ترکیب فضاهای تشخیصی ، بخش های اورژانس و کلینیک سرپایی است که از طریق دهلیز شفاف اصلی به صورت عمودی به صورت افقی به بخش های دیگر متصل شده اند و نقش مهمی در ادغام بخش ساختمان ها در یک واحد واحد و بازیگری ایفا می کنند. به عنوان سازمان دهنده مسیر داخلی عابر پیاده ، انسجام ایجاد کنید ، سلسله مراتبی بین مناطق عمومی و خصوصی ایجاد کنید و با استفاده کارآمد از نور روز و استفاده کمتر از انرژی الکتریکی ، فضای نوری ایجاد کنید.
توضیحات بیشتر + گالری تصاویر و مدارک فنی بیمارستان پارس
نکته دیگر که بر طراحی ما تأثیر می گذارد ، طراحی متفاوت بود ، زیرا به نظر می رسد فضاهای ترمیم کننده در حجم بسیار زیاد ساختمان معلق هستند ، بنابراین ظاهراً با این تقسیم هوشمندانه بین فضاها ، موضوع بحث کنترل عفونت به طور کامل کنترل می شود.
به قسمتهای پشتیبان و پشتیبان که تقریباً اینقدر شلوغ و با خطر آتش سوزی روبرو هستند با فاصله کمی در قالب سه حجم شیب دار در دو سطح قرار گرفته اند که فراوانی آنها را با یک خط سبز در اطراف مشخص کرده و دارای تهویه طبیعی بسیار مناسب در این بین است. وسایل پزشکی ، البته از این تهویه در بخشهای درمانی در ساختمان اجتناب می شود ، زیرا در این صورت ما در هر صورت عفونت را گسترش نمی دهیم .
این دهلیز پتانسیل بسیار خوبی برای طراحی ساختمان بیمارستان دارد ، مکانی که به سازگاری بیشتری با روح فناوری و سرعت رشد آن به طور خاص در این زمینه از علم نیاز دارد ، یک الهام هوشمند در پشت طراحی برای ایجاد فضاهایی با امکانات بالا مورد نیاز است. پذیرش و تغییر در زمان ضرورت. توسعه احتمالی آینده بیمارستان در ضلع غربی-شمالی ساختمان در نظر گرفته شده است.
ورودی های بیمارستان به سه نوع ورودی اصلی در ضلع جنوبی و درب اضطراری در ضلع شرقی ساختمان تقسیم می شوند و در نهایت یک بالگرد در سقف وجود دارد که دسترسی عمودی ساختمان را آماده می کند. همه دسترسی ها در دهلیز متصل شده و سپس از طریق بخش های ساختمان ایجاد می شوند.
کل حجم و شکل نمای ساختمانها در دعوت کاربران تأثیر بسزایی دارد و از اعتماد آنها به این مکانها حمایت می کند ، زیرا معیارهای طراحی خاص آن سعی در ایجاد آرامش برای صبر و حضور آنها دارد.
روزها و شبها در این ساختمان به آنها احساس سرزندگی می بخشد ، زیرا در روزها فضاهای روشن با نفوذ کنترل شده از نور طبیعی داخل با رنگهای زیبا در دیوارها و کفها فشارهای آنها را کمتر می کند و در شب ، دهلیز روشن در کانون خانه. ساختمان مانند ستاره ای درخشان است که مسیر سلامتی را نشان می دهد و حس امید به زندگی را برای کاربران و بینندگان خارج از خانه افزایش می دهد.










































